Salute
29 Aprile 2026
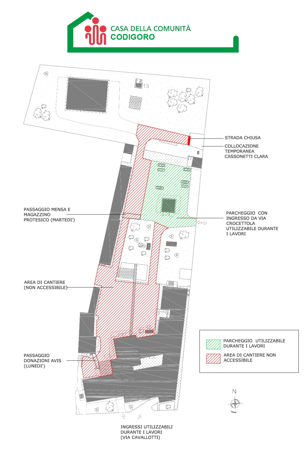
Rifatta la pavimentazione di piazzale e rampa: parcheggio chiuso fino all’11 maggio per asfalto e segnaletica, accesso da via Cavallotti

Codigoro, completati i lavori alla Casa della Comunità

di Redazione | 1 min

Leggi anche

Codigoro. Sono conclusi i lavori di rifacimento della pavimentazione stradale del piazzale interno e della rampa di carico e scarico alla Casa della Comunità di Codigoro.

Il parcheggio rimarrà interdetto al transito ed alla sosta fino a lunedì 11 maggio per consentire il corretto consolidamento dell’asfalto e procedere alla realizzazione della nuova segnaletica.

Rimane attivo il percorso alternativo per l’accesso alla struttura da parte di utenti ed operatori attraverso l’ingresso anteriore, posto su Via Cavallotti.

È possibile sostare nelle aree già precedentemente messe a disposizione all’avvio dei lavori.

Si rammenta che l’intervento rientra nei progetti realizzati dell’Azienda Usl di Ferrara con finanziamenti Pnrr.

Grazie per aver letto questo articolo...

Da 20 anni Estense.com offre una informazione indipendente ai suoi lettori e non ha mai accettato fondi pubblici per non pesare nemmeno un centesimo sulle spalle della collettività. Il lavoro che svolgiamo ha un costo economico non indifferente e la pubblicità dei privati non sempre è sufficiente.
Per questo chiediamo a chi quotidianamente ci legge e, speriamo, ci apprezza di darci un piccolo contributo in base alle proprie possibilità. Anche un piccolo sostegno, moltiplicato per le decine di migliaia di ferraresi che ci leggono ogni giorno, può diventare fondamentale.

 

OPPURE se preferisci non usare PayPal ma un normale bonifico bancario (anche periodico) puoi intestarlo a:

Scoop Media Edit
IBAN: IT06D0538713004000000035119 (Banca BPER)
Causale: Donazione per Estense.com